KBK STACKER CRANES

PRODUCTS | STACKER CRANES DEMAG | KBK STACKER CRANES

Pomocou DEMAG stohovacích žeriavov KBK je možné ľahko zvládnuť všetky skladovacie úlohy jedným pracovným krokom – bez rebríkov, vozíkov a iných pomôcok. Kusový tovar, kontajnery, alebo palety o hmotnosti 500 kg je možné spoľahlivo a bezpečne prepravovať, triediť a skladovať.

 

  • Presné uchopenie a preprava bremien
  • Ľahká preprava, triedenie a skladovanie kusového materiálu, kontajnerov a paliet o hmotnosti do 500 kg
  • Rozsah výkyvu 360°
  • So žeriavom a mačkou sa dá ľahko jazdiť ručnou silou
  • K dispozícii sú na mieru vytvorené prostriedky k uchyteniu bremien – vidlica, tŕň, upínacie kliešte a ďalšie

 

Video - 50 rokov skúsenosti s kbk

 

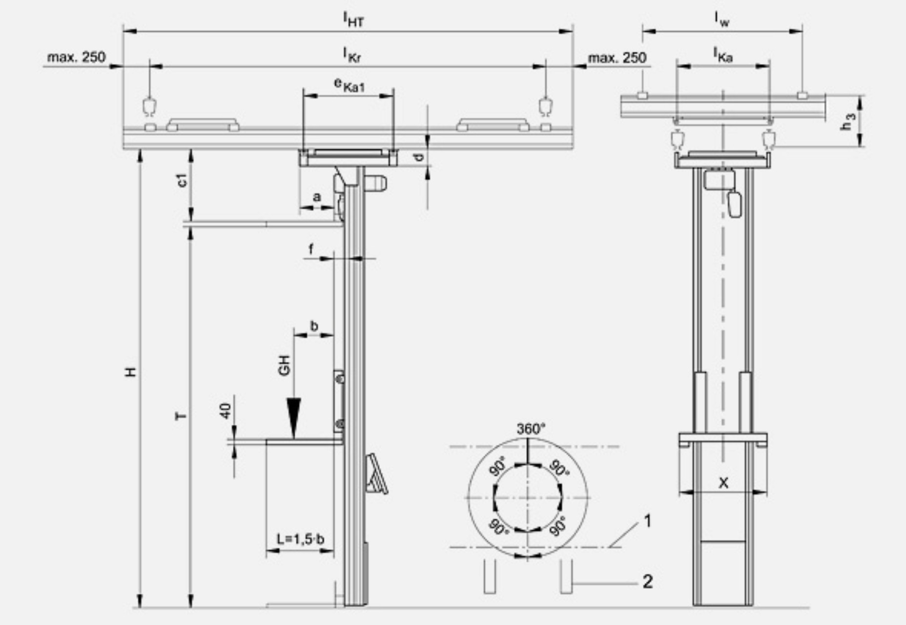
Technické parametre 

 

 

Stohovací žeriav KBK sa skladá z kombinácie dvojnosníkového podvesného žeriavu KBK a zákazníckeho riešenia stohovacej mačky s viazacím prostriedkom.

 

Tabuľka pre voľbu stohovacích žeriavov

 

b         = vzdialenosť od ťažiska bremena

H        = výška zariadenia

lHT      = dĺžka nosníka žeriava

lKa      = rozpätie mačky

 

 

Hmotnosť bremena 80 kg
b max 1200 mm
H max. 5 110 mm
KBK

II-L

II

lHT max.

5 000 mm

6 000 mm
LKa max.

1 000 mm

Max. rýchlosť zdvihu 8,0 m/min
Hmotnosť bremena 125 kg
b max 900 mm
H max. 5 110 mm
KBK

II-L

II

lHT max.

5 000 mm

6 000 mm
LKa max.

1 000 mm

Max. rýchlosť zdvihu 8,0 m/min
Hmotnosť bremena 250 kg
b max 600 mm
H max. 5 110 mm
KBK

II-L

II

lHT max.

5 000 mm

6 000 mm
LKa max.

1 000 mm

Max. rýchlosť zdvihu 8,0 m/min
Hmotnosť bremena 500 kg
b max 600 mm
H max. 5 110 mm
KBK

II

lHT max.

4500 mm

LKa max.

1 000 mm

Max. rýchlosť zdvihu 8,0 m/min

Súbory na stiahnutie

Scroll to Top

Niektorí z klientov

Volkswagen Bratislava a.s.
KIA Motors Slovakia a.s.
HYUNDAI HMMC
ŠKODA
INA Skalica
PSA PEUGEOT Trnava
Citroen
Ford
Mercedes
Audi
Všetky referencie